Mixed Use Site Design Project Portfolio
Every successful product is the fruit of much consideration, hours of hard work, master planning consideration, and engineering design. Mixed use projects combine the need for exposure for businesses with the need for privacy for residential units. This presents certain challenges which must be considered, and these pictures of a recent project in Dover are a good example of a successful application.
Many cities are encouraging the development of mixed use site designs. These typically incorporate a commercial aspect on the first floor which abuts a city street and residential units above and/or behind.
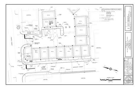
This is an example of a Mixed Use Site Plan. The developer uses a plan such as this, as well as the entire plan set, to construct sites as seen in the photographs above.

